Kaufobjekt
gefragte Lage in Reusa... vermietete 3 Zimmer Erdgeschoss Wohnung mit Balkon und TG- Stellplatz
Heiko Lorenz
Telefon:
E-Mail:
138.700,00 €
Kaufpreis
3,57 % incl. MwSt.
Courtage
106,66 m²
Fläche
3
Zimmer
Ausstattung
Die vollständige Ausstattung finden Sie in unserem Lang-Exposé.
Energieausweis
Energiekennwert:
84,70 kWh/(m²*a)
Energieklasse:
C
Ausweisart:
Verbrauchsausweis
Energieträger:
Gas
Heizungsart:
Zentralheizung
Baujahr:
1995
Energieverbrauch enthält Warmwasser.
Objektbeschreibung
Zum Verkauf steht hier eine langjährig vermietete, großzügige 3 Zimmer Wohnung mit Balkon und Tiefgaragenstellplatz in gefragter Lage.
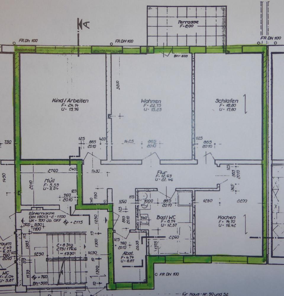
Wie Sie dem Grundriss entnehmen können, erreichen Sie alle Zimmer dieser Wohneinheit, vom Flur aus.
Das Badezimmer verfügt über eine Badewanne, eine Dusche und ein Fenster. Es ist raumhoch, freundlich hell gefliest. Auch für die Waschmaschine ist ausreichend Platz im Badezimmer. Die Küche ist recht geräumig und bietet Platz für einen Esstisch.
Den sonnigen Balkon/Terrasse betritt man vom Wohnzimmer aus. Sehr praktisch ist die kleine Abstellkammer innerhalb der Wohnung.
Da die Wohnung vermietet ist und wir die Privatsphäre der Mieter schützen wollen, haben wir keine Bilder der Einheit online. Dafür haben Sie sicher Verständnis.
Im Untergeschoss der Liegenschaft ist jeder Einheit ein Kellerabteil zugeordnet. Der Gemeinschaft stehen noch 2 Trockenräume zur Verfügung.
Die besten Eindrücke von der Immobilie gewinnen Sie bei einer Besichtigung. Sehr gerne laden wir Sie hierzu ein. Rufen Sie uns ggf. einfach an und vereinbaren Sie einen Besichtigungstermin mit uns. Wir freuen uns auf Sie.
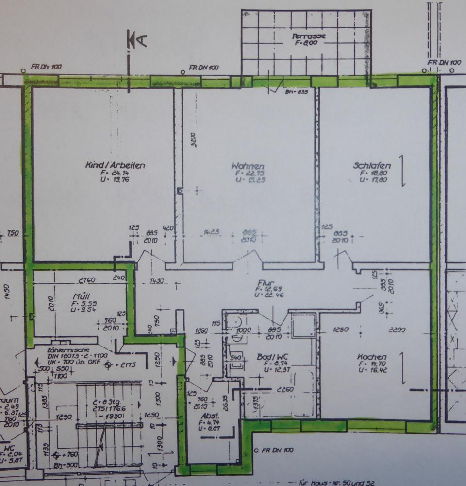
Wie Sie dem Grundriss entnehmen können, erreichen Sie alle Zimmer dieser Wohneinheit, vom Flur aus.
Das Badezimmer verfügt über eine Badewanne, eine Dusche und ein Fenster. Es ist raumhoch, freundlich hell gefliest. Auch für die Waschmaschine ist ausreichend Platz im Badezimmer. Die Küche ist recht geräumig und bietet Platz für einen Esstisch.
Den sonnigen Balkon/Terrasse betritt man vom Wohnzimmer aus. Sehr praktisch ist die kleine Abstellkammer innerhalb der Wohnung.
Da die Wohnung vermietet ist und wir die Privatsphäre der Mieter schützen wollen, haben wir keine Bilder der Einheit online. Dafür haben Sie sicher Verständnis.
Im Untergeschoss der Liegenschaft ist jeder Einheit ein Kellerabteil zugeordnet. Der Gemeinschaft stehen noch 2 Trockenräume zur Verfügung.
Die besten Eindrücke von der Immobilie gewinnen Sie bei einer Besichtigung. Sehr gerne laden wir Sie hierzu ein. Rufen Sie uns ggf. einfach an und vereinbaren Sie einen Besichtigungstermin mit uns. Wir freuen uns auf Sie.
Für die Richtigkeit und Vollständigkeit der Angaben zur Wohnung übernehmen wir keine Haftung, da wir diese Angaben vom Eigentümer übernommen haben. Einen Zwischenverkauf behalten wir uns vor.