Wohnungen
komplett möblierte 2 Zimmer Dachgeschosswohnung mit Balkon in Preißelpöhl
Heiko Lorenz
Telefon:
E-Mail:
415,00 €
Grundmiete
230,00 €
Nebenkosten
830,00 €
Kaution
645,00 €
Miete inkl. Heizkosten
67,50 m²
Fläche
2
Zimmer
EG (DG)
Etage
Ausstattung
Dusche
Wanne
Balkon
Aufzug
altersgerecht
barrierearm
Energieausweis
Energiekennwert:
132,40 kWh/(m²*a)
Energieklasse:
E
Ausweisart:
Verbrauchsausweis
Energieträger:
Gas
Heizungsart:
Zentralheizung
Baujahr:
1910
Energieverbrauch enthält Warmwasser.
Objektbeschreibung
Zur Vermietung steht hier eine voll möblierte 2 Zimmer Dachgeschoss Wohnung in der Schlachthofstraße.
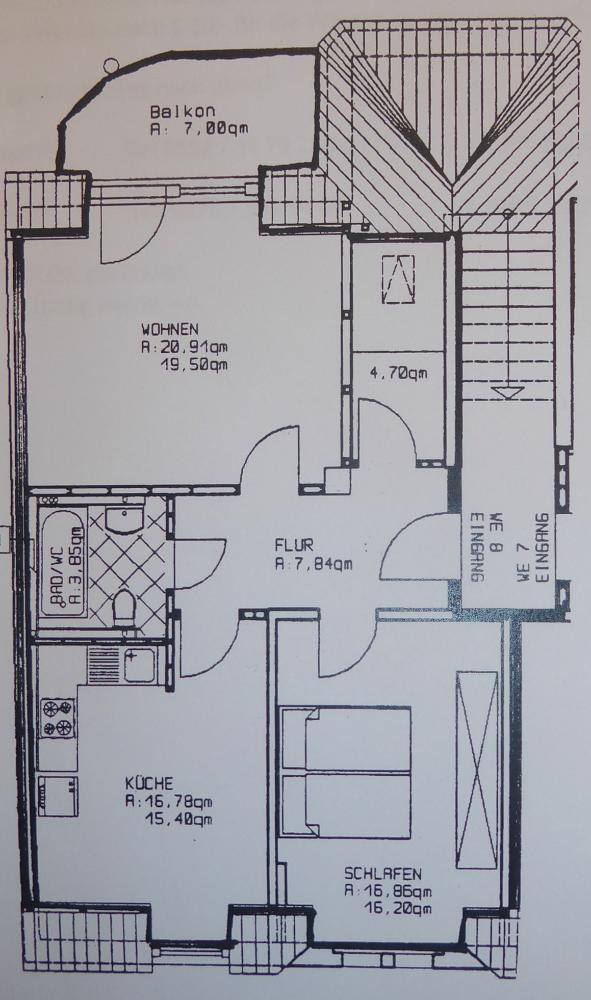
Wie Sie dem Grundriss entnehmen können, betreten Sie alle Zimmer Ihrer neuen Wohnung vom Flur aus. Den sonnigen Balkon erreichen Sie vom Wohnzimmer aus. Hier haben Sie einen tollen Blick über die Stadt.
Die Wohnung ist modern möbliert, auch eine Waschmaschine steht Ihnen zur Verfügung. Diese steht im Waschhaus im Keller der Liegenschaft. Auch ein Kellerabteil und eine Abstellkammer auf halber Treppe ist der Einheit zugeordnet.
Die besten Eindrücke der Immobilie bekommen Sie bei einer Besichtigung. Hierzu laden wir Sie sehr gerne ein. Vereinbaren Sie noch heute einen Termin mit uns. Wir freuen uns auf Sie.
Wie Sie dem Grundriss entnehmen können, betreten Sie alle Zimmer Ihrer neuen Wohnung vom Flur aus. Den sonnigen Balkon erreichen Sie vom Wohnzimmer aus. Hier haben Sie einen tollen Blick über die Stadt.
Die Wohnung ist modern möbliert, auch eine Waschmaschine steht Ihnen zur Verfügung. Diese steht im Waschhaus im Keller der Liegenschaft. Auch ein Kellerabteil und eine Abstellkammer auf halber Treppe ist der Einheit zugeordnet.
Die besten Eindrücke der Immobilie bekommen Sie bei einer Besichtigung. Hierzu laden wir Sie sehr gerne ein. Vereinbaren Sie noch heute einen Termin mit uns. Wir freuen uns auf Sie.
Für die Richtigkeit und Vollständigkeit der Angaben zur Wohnung übernehmen wir keine Haftung, da wir diese Angaben vom Eigentümer übernommen haben. Einen Zwischenverkauf behalten wir uns vor.