Wohnungen
3 Zimmer Dachgeschosswohnung mit Balkon in Zentrumsnähe
Heiko Lorenz
Telefon:
E-Mail:
340,00 €
Grundmiete
150,00 €
Nebenkosten
680,00 €
Kaution
490,00 €
Miete inkl. Heizkosten
67,94 m²
Fläche
3
Zimmer
EG (DG)
Etage
Ausstattung
Dusche
Wanne
Balkon
Aufzug
altersgerecht
barrierearm
Hinweis
Dieses Gebäude steht unter Denkmalschutz. Ein Energieausweis steht in diesem Fall nicht zur Verfügung.
Objektbeschreibung
Helle 3 Zimmer Dachgeschoss Wohnung in der Weststraße.
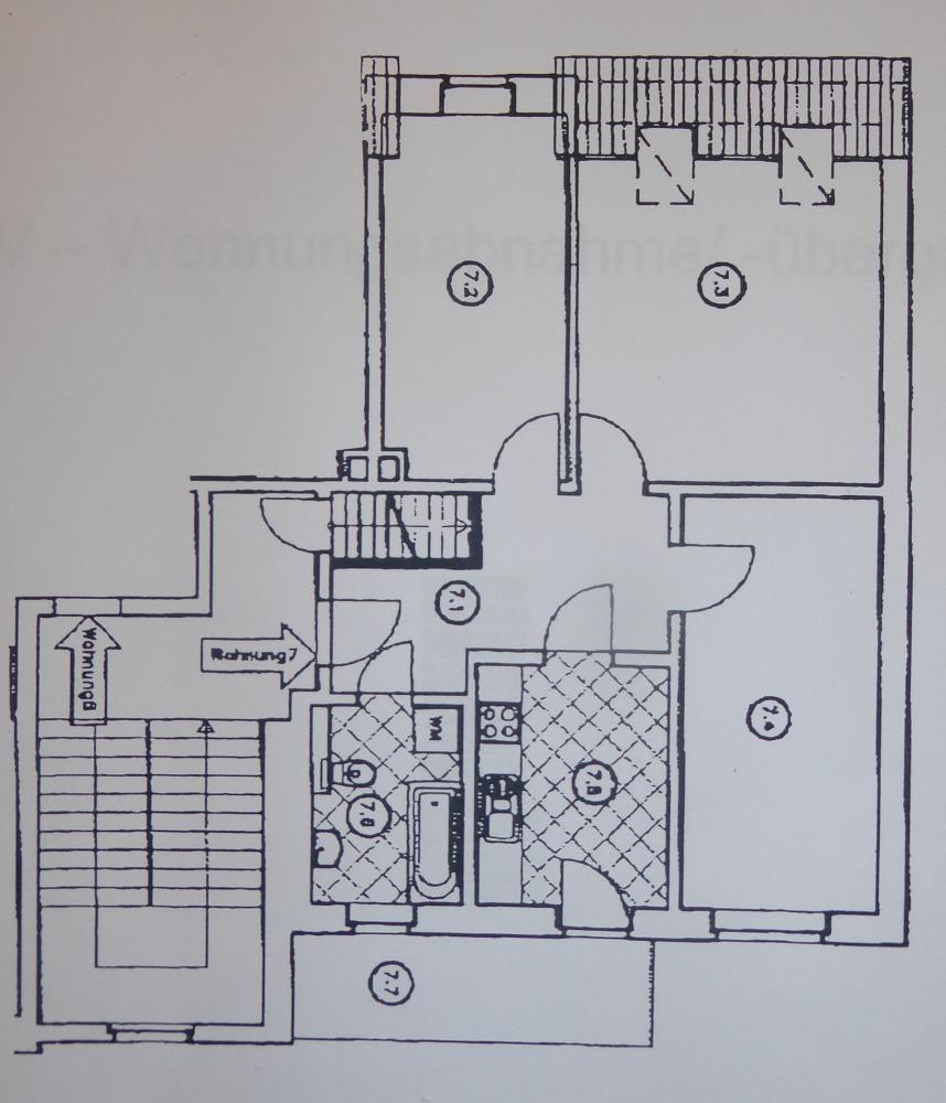
Wie Sie dem Grundriss entnehmen können, erreichen Sie alle Zimmer vom Flur aus. Ihr Bad und die Küche sind gefliest. In den anderen Räumen der Wohnung liegt Laminat aus. Das Badezimmer hat ein Fenster und auch für die Waschmaschine ist ausreichend Platz. Den sonnigen Balkon betreten Sie von der Küche aus.
Im Keller des Objektes steht jeder Mietpartei ein Abteil zur Nutzung zur Verfügung.
Da wir die Privatsphäre der Mieter schützen wollen, gibt es erst nach Auszug der Mieter, weitere Bilder der Einheit. Dafür haben Sie sicherlich Verständnis.
Wir haben Sie neugierig gemacht? Dann vereinbaren Sie noch heute einen Besichtigungstermin mit uns und machen Sie sich Ihr eigenes Bild dieser Wohnung.
Wie Sie dem Grundriss entnehmen können, erreichen Sie alle Zimmer vom Flur aus. Ihr Bad und die Küche sind gefliest. In den anderen Räumen der Wohnung liegt Laminat aus. Das Badezimmer hat ein Fenster und auch für die Waschmaschine ist ausreichend Platz. Den sonnigen Balkon betreten Sie von der Küche aus.
Im Keller des Objektes steht jeder Mietpartei ein Abteil zur Nutzung zur Verfügung.
Da wir die Privatsphäre der Mieter schützen wollen, gibt es erst nach Auszug der Mieter, weitere Bilder der Einheit. Dafür haben Sie sicherlich Verständnis.
Wir haben Sie neugierig gemacht? Dann vereinbaren Sie noch heute einen Besichtigungstermin mit uns und machen Sie sich Ihr eigenes Bild dieser Wohnung.
Für die Richtigkeit und Vollständigkeit der Angaben zur Wohnung übernehmen wir keine Haftung, da wir diese Angaben vom Eigentümer übernommen haben. Einen Zwischenverkauf behalten wir uns vor.