Wohnungen
wohnen im Kopfhaus... großzügige 3 Zimmer Wohnung mit Wintergarten und tollem Ausblick
Heiko Lorenz
Telefon:
E-Mail:
640,00 €
Grundmiete
226,00 €
Nebenkosten
1.280,00 €
Kaution
866,00 €
Miete inkl. Heizkosten
90,70 m²
Fläche
3
Zimmer
Ausstattung
Dusche
Wanne
Balkon
Aufzug
altersgerecht
barrierearm
Energieausweis
Energiekennwert:
87,00 kWh/(m²*a)
Energieklasse:
C
Ausweisart:
Bedarfsausweis
Energieträger:
Gas
Heizungsart:
Zentralheizung
Baujahr:
1967
Objektbeschreibung
Zur Vermietung steht hier eine frisch renovierte 3 Zimmer Wohnung im 4. Obergeschoss des Kopfhauses.
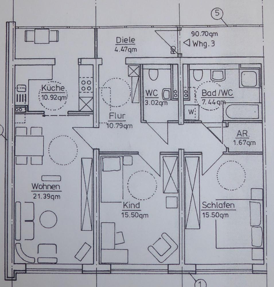
Wie Sie dem Grundriss entnehmen können, erreichen Sie bis auf die Küche und den Wintergarten, alle Zimmer vom Flur aus. Die Küche betreten Sie vom Wohnzimmer aus und der Wintergarten schließt sich an die Küche an. Vom Wintergarten aus haben Sie einen tollen Blick in die Bahnhofstraße. Eine moderne Einbauküche ist schon vorhanden. Das Badezimmer ist innenliegend und verfügt über eine ebenerdige Dusche und eine Badewanne. Die Waschmaschine hat ihren Platz in der Gästetoilette.
Zusätzlichen Stauraum bietet der kleine Abstellraum innerhalb der Wohnung.
Die Möbel im Wintergarten könnten übernommen werden, insofern diese Ihrem Geschmack entsprechen.
Eine Bodenkammer steht jeder Einheit zur Nutzung zur Verfügung.
Die besten Eindrücke der Immobilie bekommen Sie bei einer Besichtigung. Hierzu laden wir Sie sehr gerne ein. Vereinbaren Sie noch heute einen Termin mit uns. Wir freuen uns auf Sie.
Wie Sie dem Grundriss entnehmen können, erreichen Sie bis auf die Küche und den Wintergarten, alle Zimmer vom Flur aus. Die Küche betreten Sie vom Wohnzimmer aus und der Wintergarten schließt sich an die Küche an. Vom Wintergarten aus haben Sie einen tollen Blick in die Bahnhofstraße. Eine moderne Einbauküche ist schon vorhanden. Das Badezimmer ist innenliegend und verfügt über eine ebenerdige Dusche und eine Badewanne. Die Waschmaschine hat ihren Platz in der Gästetoilette.
Zusätzlichen Stauraum bietet der kleine Abstellraum innerhalb der Wohnung.
Die Möbel im Wintergarten könnten übernommen werden, insofern diese Ihrem Geschmack entsprechen.
Eine Bodenkammer steht jeder Einheit zur Nutzung zur Verfügung.
Die besten Eindrücke der Immobilie bekommen Sie bei einer Besichtigung. Hierzu laden wir Sie sehr gerne ein. Vereinbaren Sie noch heute einen Termin mit uns. Wir freuen uns auf Sie.
Für die Richtigkeit und Vollständigkeit der Angaben zur Wohnung übernehmen wir keine Haftung, da wir diese Angaben vom Eigentümer übernommen haben. Einen Zwischenverkauf behalten wir uns vor.